Trend D 141
Jelovica hiše, d. o. o.
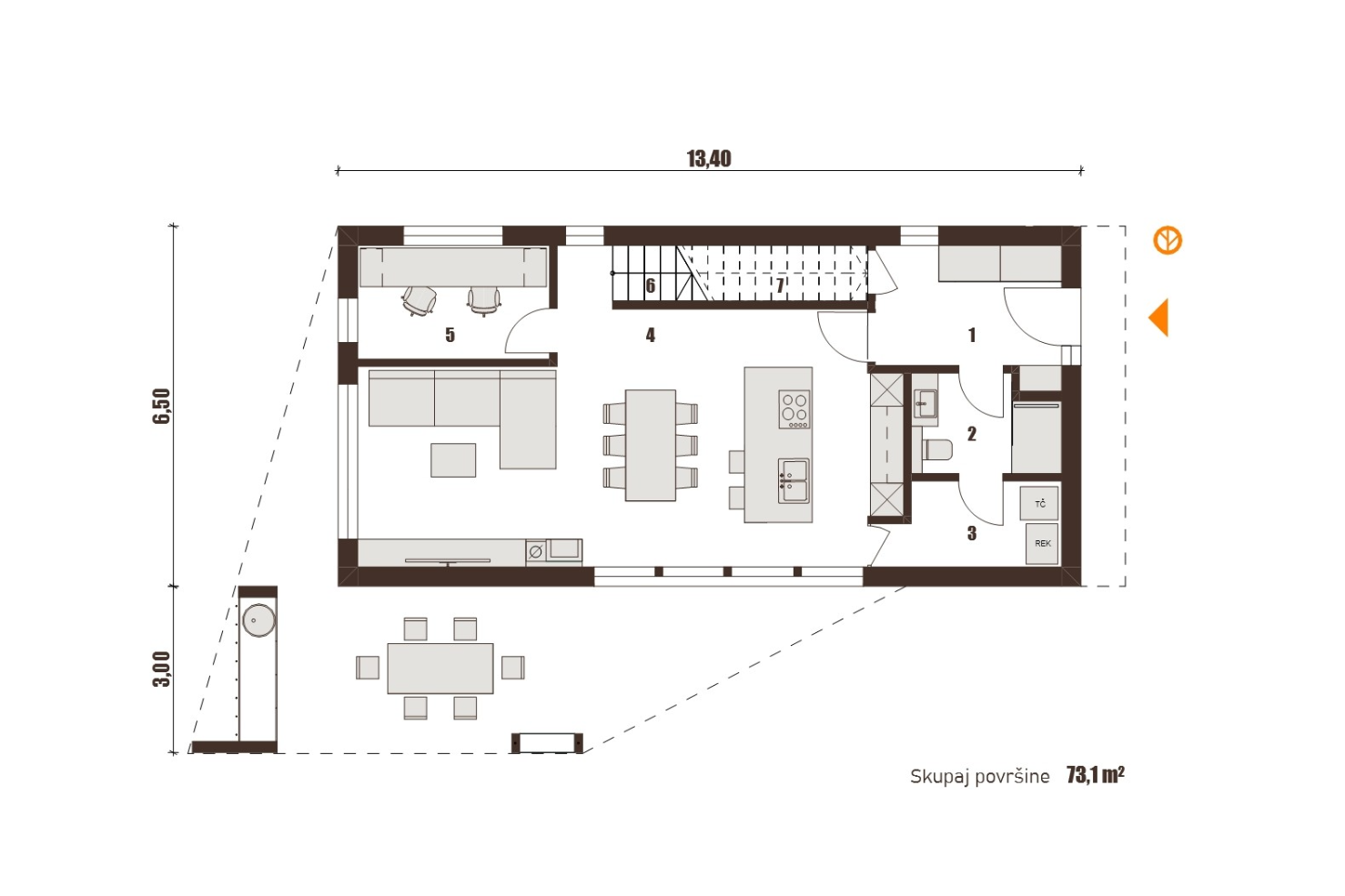
Lesena montažna hiša D 141 ponuja idealno razporejene prostore z veliko udobja za vse družinske člane. Na 141 kvadratnih metrih površine omogoča prilagodljivost prostorov v različnih obdobjih življenja in zagotavlja visoko kvaliteto bivanja.
Poleg vhoda z garderobnim delom, zasnova pritličja ponuja kopalnico s tušem, tehnični prostor in shrambo pod stopniščem. Prednost hiše je večji kabinet v pritličju, ki ponuja dovolj prostora za dve večji pisalni mizi.
Spalni del hiše v nadstropju nudi tri prostorne spalnice. V udobnih in svetlih otroških sobah je na voljo obilo prostora za ustvarjanje ali učenje. Spalnica staršev je zasnovana za maksimalen komfort in sprostitev, za dobro organizirane garderobne omare je predviden ločen garderobni prostor. Posebna odlika hiše je vsekakor prostorna, sodobno zasnovana kopalnica z večjim tušem in prostorom za savno ali razkošno, masažno kopalno kad. Poleg kopalnice se v nadstropju nahaja večja pralnica s prostorom za shranjevanje ali sušenje perila.
Podatki o objektu
Ime objekta: Trend D 141
Tip objekta: enodružinska hiša
Bivalna površina: 141 m²
Sistem gradnje: okvirno-panelni
Energijska učinkovitost: skoraj-ničenergijska hiša
Trajnostni certifikati: CE, RAL, Green Star
Izvajalec: Jelovica hiše, d. o. o.
- 04 275 03 24
- info.hise@jelovica.si
- www.jelovica-hise.si
- Klikni za ogled: Jelovica o hiši Trend D 141



















