Hiša Ljubljana
Rihter, d. o. o.
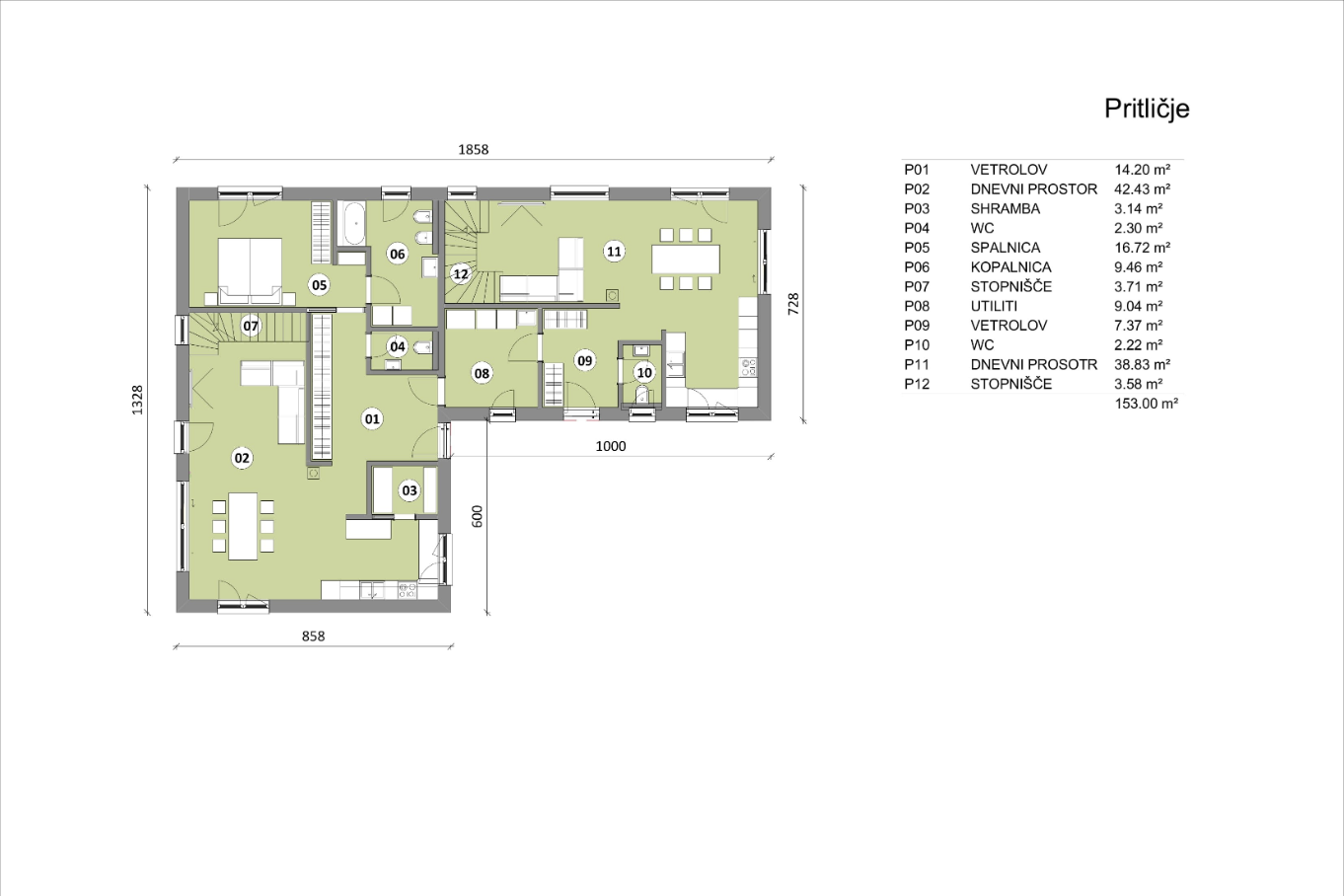
Ta sodoben dvostanovanjski objekt v središču Ljubljane združuje tradicionalno estetiko z inovativnimi rešitvami za udobno in varčno bivanje. S skupno površino 253,34 m² je razdeljen na dve ločeni stanovanjski enoti v pritličju medtem ko mansarda pripada samo enemu delu stanovanja.
V pritličju se nahajata dve ločeni stanovanji, vsako s svojim vhodom. Obe enoti imata prostoren dnevni prostor, kuhinjo, spalnice, kopalnico in dodatne funkcionalne prostore, kot so shramba, utility in vetrolov. Mansarda ponuja dodatne bivalne površine, vključno z galerijo, spalnico in kopalnico.
Tradicionalna arhitektura objekta združuje sodobne energetsko učinkovite rešitve, velike steklene površine, ki zagotavljajo obilico naravne svetlobe, ter kombinacijo bele fasade, lesenih detajlov in rdeče strehe, kar daje objektu brezčasen in prijeten videz. Hiša je idealna za dvostanovanjsko bivanje ali kot medgeneracijski dom.
Podatki o objektu
Ime objekta: Hiša Ljubljana
Tip objekta: večstanovanjski objekt
Bivalna površina: od 150 m² do 300 m²
Sistem gradnje: okvirno-panelni
Energijska učinkovitost: skoraj-ničenergijska hiša
Trajnostni certifikati: CE, UA, RAL, Passivhaus inštitut Darmstadt
Izvajalec: Rihter d. o. o.
- 03 839 04 30
- info@rihter.si
- www.rihter.si
- Klikni za ogled: Rihter o Hiši Ljubljana









